Модульный жилой контейнер

Модульный жилой контейнер — это современное мобильное жилое помещение, выполненное из прочных и экологичных материалов, предназначенное для временного или постоянного проживания. Такие контейнеры легко транспортируются и быстро монтируются, что делает их идеальным решением для строительства жилых комплексов, офисов, гостиниц, а также для использования на строительных площадках, в отдалённых районах и при чрезвычайных ситуациях.

Основные преимущества модульных жилых контейнеров:

  • Быстрая установка и демонтаж 
  • Высокая прочность и устойчивость к внешним воздействиям 
  • Возможность комбинирования нескольких модулей для увеличения жилой площади 
  • Современный дизайн и комфортные условия проживания 
  • Энергоэффективность и хорошая теплоизоляция 
  • Возможность оснащения всеми необходимыми коммуникациями (электричество, водоснабжение, отопление) 

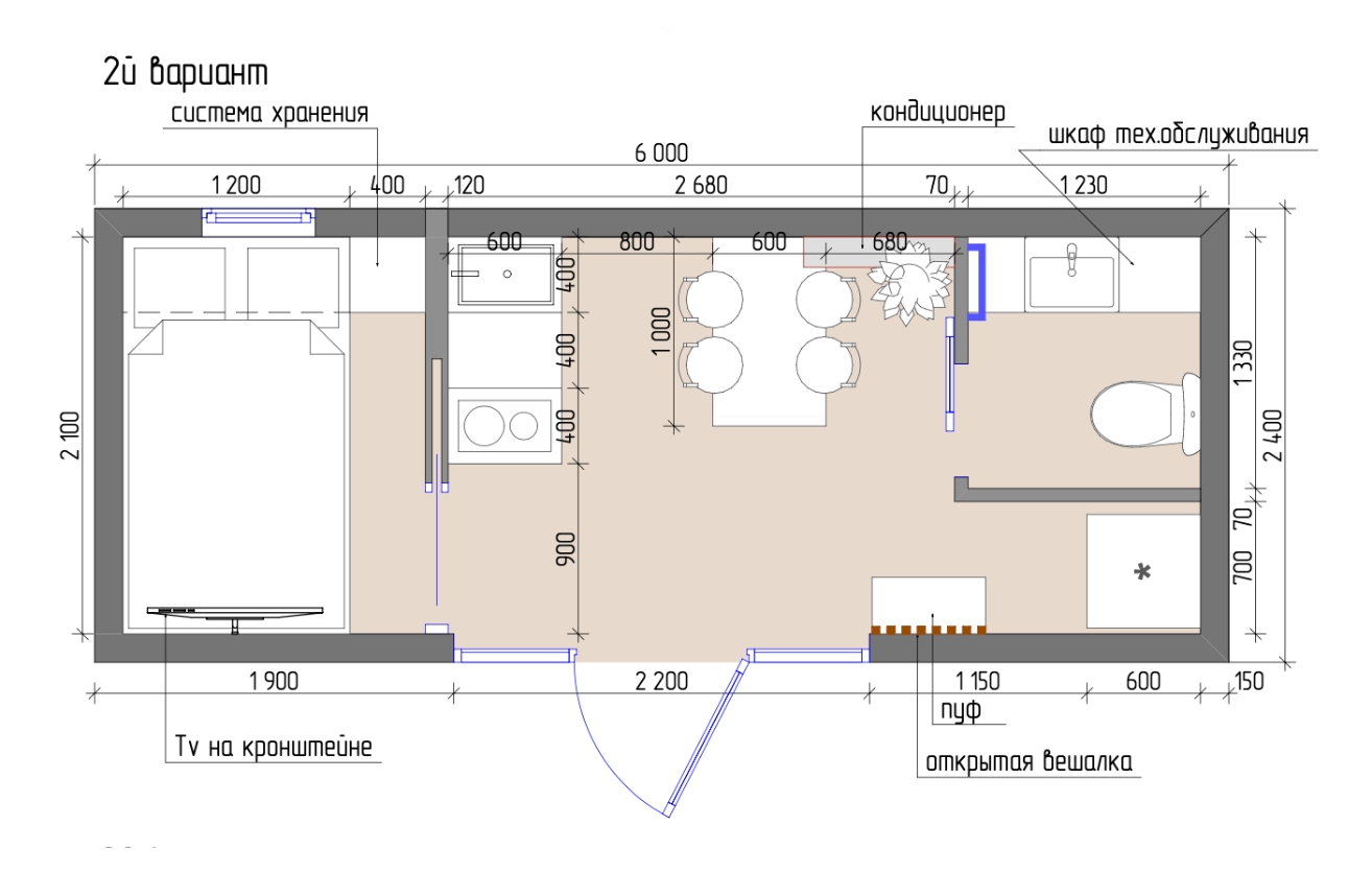
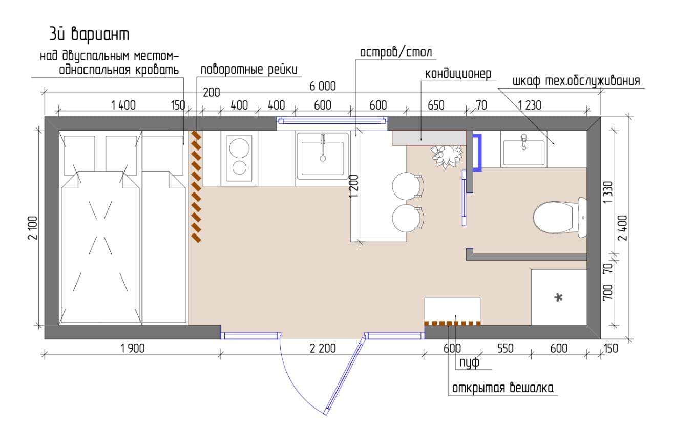
Варианты планировок модульного жилого
контейнера 6 на 2,4 м

Вы можете выбрать один из готовых проектов или заказать индивидуальное проектирование

Комплектации и цены

Все цены включают работы, материалы, монтаж.
подробный состав комплектаций приведен в таблице ниже

Мини

Каркас, утепление, пароизоляция, влаго-ветрозащита, внешняя отделка, стеклопакет 2х2,4

Базовый

+ внутрення отделка, освещение, вентиляция, перегородка, окно 560х660

Классический

+ внутрення отделка, освещение, вентиляция, перегородка, окно 560х660, сантехника (унитаз, раковина с тумбой)

1 050 000 р.

модульные жилые контейнеры, это

практичное и экономичное решение

для создания комфортного жилого пространства в любых условиях.

Состав комплектации
Мини
Базовый
Классический
Силовой каркас из сухого бруса 45*95, влажностью 10-12%.
- Каркас пола 45*140
- Каркас стен 45*95
- Каркас кровли 45*140
Паро- и гидроизоляция
Теплоизоляция стен 100мм
Теплоизоляция кровли и пола 150мм
Внешняя отделка боковых и задней стен — кликфальц. Отделка фасада-планкен
Перегородка в санузле с проемом 0,7м*2м
Инженерные системы
Отделка стен
штиль вагонка
вертикальный планкен
Отделка потолка
натяжной
натяжной
Отделка пола
ламинат
ламинат
Освещение, розетки, вентиляция в модуле
Уличное освещение
Стеклопакет 2х2,4
Окно 560х660
Унитаз, раковина с тумбой. Вывод канализации на улицу
whatsapp-image-2022-03-07-at-15.17.59
img-7274
FOTO A.GALANIN
img-5010
image (1)
Unknown 19-3-2026
image
Unknown-2 19-3-2026

Модульный коммерческий модуль

это универсальное решение, изготовленное под заказ с учётом индивидуальных потребностей клиента.

Такой модуль идеально подходит для организации торговых точек, офисных помещений, выставочных стендов и других коммерческих целей.

Благодаря модульной конструкции, изделие легко адаптируется под любые размеры и функциональные требования, обеспечивая максимальную гибкость и удобство эксплуатации.

Используются качественные материалы и современные технологии производства, что гарантирует долговечность, надежность и привлекательный внешний вид.

Закажите модульный коммерческий модуль, чтобы получить оптимальное решение, полностью соответствующее вашим бизнес-задачам.

Мечтаете о собственном пространстве?

Сделайте первый шаг к нему прямо сейчас!

    Остались вопросы или уже готовы купить?

    Перезвоним в в течении 15 минут в рабочее время


    Корзина для покупок
    Прокрутить вверх